barra

€ 215.000 Ultima verifica: 30/05/2017

Provincia di Livorno | Comune di Livorno | Zona: Centro città


cbm

Barbara Rapallini e Letizia Messina
Barbara Rapallini
Letizia Messina
Agenti Immobiliari

Ti interessa questo immobile?
Chiama subito il numero 0586 884736,
oppure invia il modulo sottostante!

Il tuo nome (richiesto)

La tua email (richiesto)

Telefono (richiesto)

Il tuo messaggio

Accetto l'utilizzo dei miei dati personali secondo la legge della privacy

Appartamento in vendita | Rif. N. 564

Livorno -Piazza della Vittoria (piazza Magenta) Appartamento in Vendita in bel palazzo d’epoca completamente ristrutturato con rifiniture originali, 120 metri quadri calpestabili, ideale per chi ama i restauri conservativi.
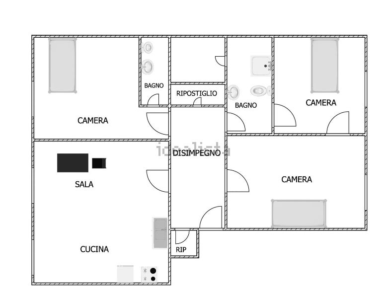
La casa si presenta molto piacevolmente con i bellissimi pavimenti in parquet posato a lisca, le sue grandi finestre affacciate sul verde e le porte bianche originali; un ampio ingresso di tipo tradizionale ci accoglie e ci introduce all’ampio salone con angolo cottura , alle 3 spaziose camere, ai bagni entrambi finestrati (di cui uno con accesso da una camera) e ai vari comodi ripostigli.
Le facciate, il tetto e il vano scale del palazzo d’epoca sono stati completamente ripristinati e le spese condominiali sono contenute.€215.000  RIF.: 564.
La zona in cui si trova l’immobile è centralissima, vicino a Piazza Cavour e piazza Attias, in un contesto molto verde e con tutti i servizi in zona.
La localizzazione in mappa è approssimativa, per vedere l’appartamento contattaci allo 0586 886858

Genere residenziale Categoria Appartamento
Condizioni Ottime Contesto Imm Buono
Contesto Urbano: Buono Vetustà 1800
Superficie Lorda 125 Vani: 4
Sala doppia Cucina angolo cottura
Tinello Studio
Totale Camere 3 Cam. Matrimoniali 3
Totale bagni 2 B. finestre 2
Ripostiglio 2 Balconi
Verande Terrazze
Giardini Piano 2
Ingresso Taverna
Soffitta Cantina
Garage Posto auto No
Livelli 1 Ascensore
Arredato Stato
Riscaldamento Autonomo Classe Energetica

Indice prestazione
G

Se sei un'agenzia iscritta a casa in Livorno fai il login per visualizzare altri dati

CasaInLivorno ©