barra

€ 43.000 Ultima verifica: 27/03/2019

Provincia di Livorno | Comune di Livorno | Zona: Centro città


piani

domeniconi
Lorenzo Piani Domeniconi
Agente Immobiliare

Ti interessa questo immobile?
Chiama subito il numero 0586 210999,
oppure invia il modulo sottostante!

Il tuo nome (richiesto)

La tua email (richiesto)

Telefono (richiesto)

Il tuo messaggio

Accetto l'utilizzo dei miei dati personali secondo la legge della privacy

Negozio in vendita | Rif. N. 43

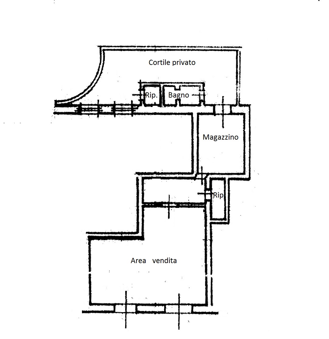
NS ESCLUSIVA, BORGO CAPPUCCINI: Fondo commerciale con cortile privato. Spaziosa area vendita con 2 vetrine, retrobottega, bagno, rip. e spogliatoio. 55 mq interni. Possibilità di convertire in abitazione. Classe D, IPE 267,4.

Genere commerciale Categoria Negozio
Condizioni Buone Contesto Imm Buono
Contesto Urbano: Buono Vetustà
Superficie Lorda 55 Vani: 2
Sala seleziona Cucina seleziona
Tinello Studio
Totale Camere Cam. Matrimoniali
Totale bagni 1 B. finestre
Ripostiglio Balconi
Verande Terrazze
Giardini 30 Piano TR
Ingresso Taverna
Soffitta Cantina
Garage Posto auto No
Livelli 1 Ascensore
Arredato Stato
Riscaldamento Autonomo Classe Energetica

Indice prestazione
G
267,4

Se sei un'agenzia iscritta a casa in Livorno fai il login per visualizzare altri dati

CasaInLivorno ©